The app mentioned in this post saved my sanity while opening drawings that contained a large amount of XREFs (External References). The “XREF Load Status” app is available from the Autodesk Exchange Apps store in a free version that will only work with XREFs that are .dwg files or a paid version that will work with XREFs that .dwg, .DGN and various image files. I spent the $5 for the full version since I knew that I would be dealing with various file types from time to time. I usually don’t do a review like this but this app needs deserves it.
The app is made by RedTransit Consultants. They have other apps available and also services to develop custom apps as well.
The project that I used this app on had a ridiculous amount of XREFs some of which were huge. Some files referenced over 140 other files and the disk size was well over 350 megabytes and it took multiple minutes to open. And the thing is that maybe the only edit that was needed to be made was a text edit or Attribute edit.
That’s where this app came in to save the day.
Shown below is a well known file that contains multiple XREFs. Lets say you wanted to be able to control which XREFs will open when you open your file. With this app you can control this – it could be a few XREFs or none…
After installing the XREF Load Status APP, it should appear under the “Plugins” tab of the ribbon. Click to start.
Note that you should launch the app from another drawing or in a blank drawing. Basically, you are controlling the XREFs in a drawing without being in that drawing…
Once the tool starts, you will see the dialog box shown below.
Click the long button that says “Select Drawing File to Open…”
Navigate to the file and select it and click open:
The drawing’s XREFs will display in the dialog box and the various option of how the XREFs are loaded will be shown.
Note that the current “Load Status” is shown under the corresponding sides of the dialog box. Files in the left column are not currently loaded (UNLOADED) and the files in the right side are currently loaded
There are a few choices to help you select which XREFs are loaded or unloaded:
- Sort Ascending – will sort the list of XREFs in alphabetical order
- Check All – will check all of the check-boxes in the list
- Clear All – unchecks all of the check-boxes in the list
- Invert All Toggles – Will let you easily switch the checks in the check-boxes. This is great becasue otherwise you would have to use the select all button and then go through and deselect the XREFs that you want loaded. So – to use this option, you go through the list of XREFs and check the ones that you want loaded and then click this button to “invert” those selections.
Once you have made your selections, you are given the choice of what to do with these changes, You can simply save these setting in that file without opening it and move on to the next one, or you can apply these settings and open the file.
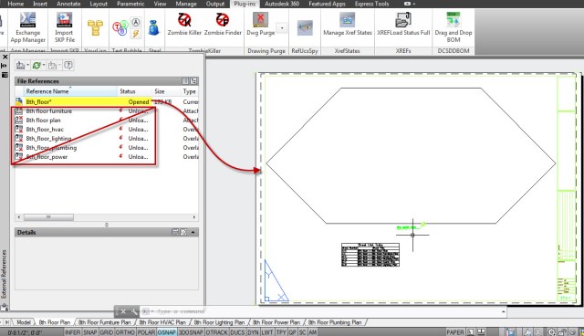
Shown below is a list of the XREFs that are “Unloaded”
The drawing shown below is the file with all of the XREFs not being loaded upon opening.
~enjoy






